调节阀

气动高压角式调节阀

气动高压角式调节阀

产品详情

产品特点
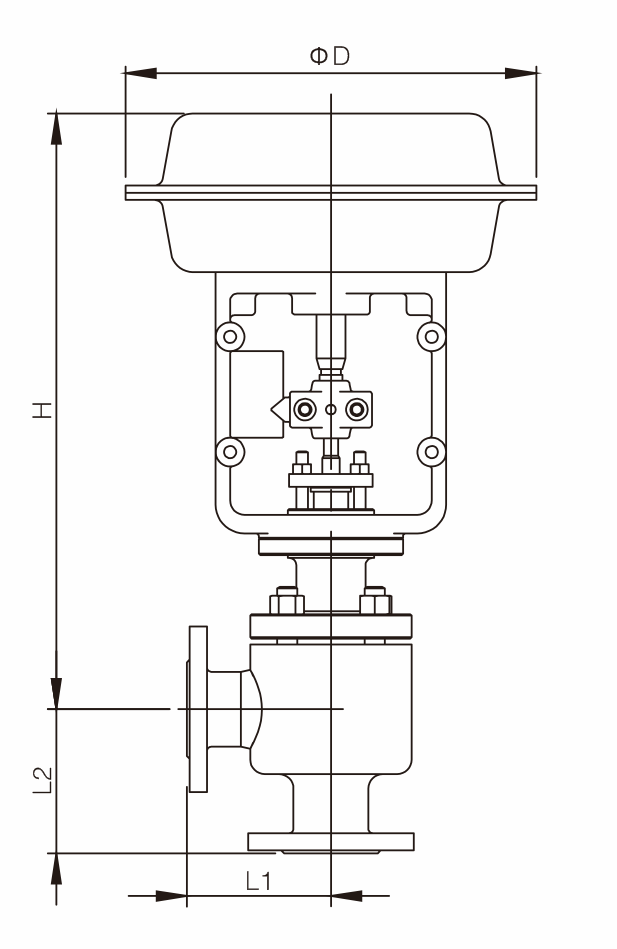
      气动薄膜角形高压调节阀,阀芯有柱塞式和套筒式两种型式。具有允许压差大、噪音低、工作平稳等特点,用于压差大,易产生汽蚀,且使管线配成直角安装的高压场合。

技术参数
      公称通径:DN15-125
      公称压力:PN22-32
      流量特性:直线;等百分比
      介质温度:-20~200 ℃(常温型);-40~450 ℃(中温型)
      法兰尺寸:螺纹、法兰 按JB/T2769-1992
      阀体材质:35;1Cr18Ni9;0Cr18Ni12Mo2Ti

      阀芯材质:1Cr18Ni9 ;0Cr18Ni12Mo2Ti;堆焊硬质合金